其美云考察之Kampung Admiralty老年社区综合体
特殊时期,线下商场考察调研遭遇很大阻碍,针对这一痛点,其美设计特推出“其美云考察”专题分享,以云考察的形式,解决特殊时期线下考察受阻的痛点,深入分析行业新项目新发展,从专业角度窥看世界!
上一期介绍了围绕商业、艺术文化与自然环境的日本网红商业日比谷中城,这一期为大家分享为老年人打造的人性化社区新加坡Kampung Admiralty。更多精彩内容,敬请期待下个周三~
商业需要与时俱进不断创新,也需要顺应人口结构的变化。随着中国老龄化程度的加深和新一代进入退休阶段老人消费理念的日趋成熟,激活并重塑老年消费正在成为商业的新思潮。
针对新加坡人口老龄化问题,有这样一个综合社区——集养老公寓、医疗康养、托幼、老年娱乐、商业、小贩中心、广场为一体的养老综合体。紧邻地铁站,按照TOD开发思路,实施高强度开发,建筑密度基本接近100%。
Kampung Admiralty的诞生 Kampung Admiralty社区综合体(海军部村项目),是由新加坡建屋局开发的将公共设施和服务融为一体的综合公共组屋项目,同时也是一个应对新加坡人口老龄化趋势的老年人社区,只有55岁以上的老年人才允许申请入住。
Kampung Admiralty社区综合体,将大量公共设施集中在一栋建筑内。建筑师解释说:“传统方法是让每个政府机构分割出他们自己的土地,从而形成几个独立的建筑,另一方面,这个一站式的综合体最大限度地利用土地,是满足新加坡老龄化人口需求的模型范本。”
“总会三明治”的多样化垂直社区
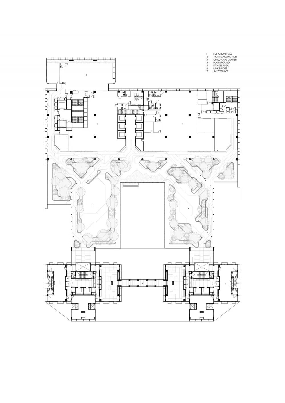
由于场地紧张,高度限制仅为45米(148英尺),WOHA设计了一个由三个“地层”组成的多样化的垂直村庄。综合体被设想为“总会三明治”,下层可容纳一个社区广场,上面有一个医疗中心。最上面的楼层设有一个社区公园,为老年人提供住宿。设计团队解释说,“他们与医疗、社会、商业和其他便利设施的紧密联系,支持代际联系并促进积极老龄化。”
这三个不同层面的空间囊括了各种建筑功能,以促进功能空间之间的交叉性和多样性,同时将地面空间留给大众,方便其进行各种活动。
综合体东立面及其周边环境 ?Darren Soh
这种设计概念拉近了医疗健康、社交活动、商业和其他便利设施之间的距离,加强了多代人之间的联系,促进积极老龄化。
上层的社区公园,除了梯田绿化景观,还是开放的社区农场、社区活动中心,其间布置了长椅、健身器材等设施,为老人们提供了一个社交场所,可以来这里锻炼、聊天,或者打理花草。
在这个温馨的、包容的空间内,公众可以参加一些有组织的活动和季节限定的节日庆典,可以尽情购物,也可以在二层的大排档餐饮区用餐。
中层的医疗中心,是作为养老社区的标配内容,方便居民就近就医而设置的。
底层的社区广场,即是建筑的一层,是一个完全公共的环境,居民可以在这里组织活动。并且,在此举行的活动,就可以不用担心新加坡毫无雾霾遮挡的烈日,也不用担心会“看心情”来的雨水。
值得一提的是,在Kampung Admiralty中设置一个医疗中心意味着居民不再需要专门去医院看病,也不用因为时间和距离的原因被迫进行日间手术。
为了促进医疗健康服务,医疗中心的咨询和等候区采用自然采光,阳光透过四周的窗户和中庭照进室内,为患者提供了一个舒适的氛围。 医疗中心围绕着中心庭院,提供了舒缓的绿色景观视野 ?Patrick Bingham-Hall
而位于上层区域的社区公园俯瞰着下层的社区广场,将老年人的生活与自然环境和各年龄层的人相连,消除了老年人的孤独感。
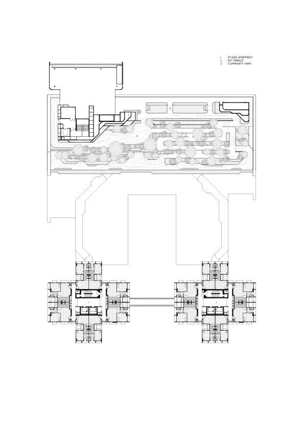
屋顶公园的规模很小,可以让居民聚在一起锻炼、聊天或照料社区农场。托儿所和自带老年人护理服务的老年人活动中心等附属功能空间并排设置,将年轻人和老年人聚集在一起。
综合体内共设有104间老年公寓,分布在两个11层的街区内,供老年单身人士或夫妻入住。共享入口处的“共享长椅”则鼓励老年人走出家门,与邻居互动。
▼老年公寓内外进行无障碍设计,厕所、门口处都设置老年扶手等辅助设施。
▼户外走廊和座椅都有老年人扶手。
托儿所和自带老年人护理服务的老年人活动中心等附属功能空间并排设置,将年轻人和老年人聚集在同一个空间内,为他们共同生活、吃饭和娱乐提供了条件。
社区的植被景观中包含许多当地的果树,屋顶上还有一个社区农场 ?Patrick Bingham-Hall
儿童游乐场位于室外活动区旁的社区公园内,促进了多代人之间的交流 ?Patrick Bingham-Hall
此外,建筑师还把“海绵城市”的理念叠加到了建筑垂直绿化上,把这栋建筑变成了一块“海绵宝宝”!在梯田绿化景观的每一层都布置了集水系统,收集来的雨水会在雨停之后,用做景观用水。
项目图纸
结语 目前,全世界老年人口超过2亿的国家只有中国,未来中国60岁以上的老人将达到3亿人面对这种变化,零售业需要在传统社区商业上进行再创新,才能走出困境。 Kampung Admiralty社区在倾向于老龄化的概念上定位很明确,主要为老年人提供人性化服务,给人们的生活提供了很多的便利和服务。 所以,在老龄化社会里,零售业其实承担了更多社会职能,给随着我国老龄化程度越来越高,我过零售业也需要在经营当中针对社会结构和消费群体的变化,及时作出调整,才能在未来找到更多的发展机会。

